Irina Schrotter, cunoscută mai ales pentru cariera sa în modă, continuă să inoveze, de data aceasta în domeniul imobiliar. În Bucium, pe un teren de 7.041 mp, familia Schrotter pregătește un complex rezidențial care promite să schimbe standardele locuirii în zonă.
Planurile includ trei blocuri cu regim de înălțime parter + 3 etaje și un total de 27 de apartamente, iar lucrările ar putea începe anul viitor.
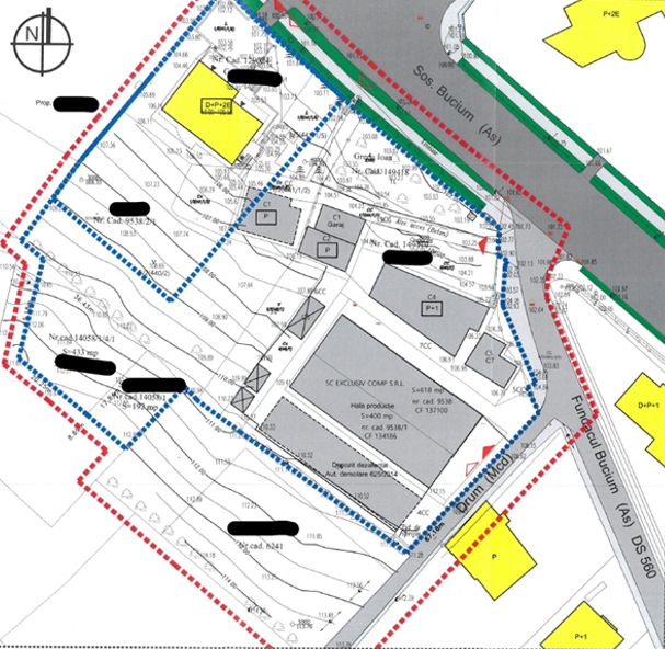
O fostă hală va face loc unui complex de apartamente de lux
Pe amplasamentul viitorului ansamblu rezidențial se află în prezent o fostă hală de producție a firmei Exclusiv Comp SRL.

„Hala se va demola. Acum o folosim ca depozit pentru Romanian Creative Week”, explică Irina Schrotter. Proiectul a trecut recent de faza dezbaterii publice, iar planurile urbanistice prevăd o distribuție atent calculată a terenului: 41% pentru construcții, 29% pentru drumuri și circulație pietonală și 27% pentru spații verzi.
După demolarea halei, pe terenul aparținând familiei Schrotter urmează să fie construite patru clădiri de locuit, cu un număr mic de studiouri, apartamente cu o cameră sau apartamente cu două camere în fiecare dintre acestea.

Potrivit PUZ, infrastructura va fi modernizată substanțial. Drumul adiacent va fi lărgit la 7 metri, cu trotuare de 1,5 metri, iluminat stradal și locuri de parcare suficient dimensionate. „Vor fi 37 de locuri de parcare”, precizează Irina Schrotter, astfel încât acestea să acopere și un minim de spații de parcare pentru vizitatori.
Apartamente cu cel puțin două băi
Proiectul din Bucium este doar unul dintre pașii pe care familia Schrotter îi face în domeniul imobiliar. Prima încercare, un „proiect-școală” realizat pe strada Toma Cozma, în Păcurari, a fost destinat uzului personal, fără intenția de a-l scoate la vânzare, a spus Irina Schrotter într-un interviu în studioul ZDI (vezi aici).
La Fundație, lângă viitorul Muzeu al Copiilor, familia dezvoltă un alt imobil de mici dimensiuni. „Acolo va fi un bloc în care probabil ne vom muta și noi, pentru că de la o anumită vârstă o casă e prea mult. Vor fi puține apartamente, nici nu știu încă dacă ne-am propus să vindem, acolo vom fi foarte pretențioși”, spune Irina Schrotter.
Un alt proiect în derulare este un bloc boutique situat pe o colină din Păcurari, lângă Cimitirul Evreiesc. „Al treilea proiect e tot în Păcurari. Acel proiect e destinat vânzării, e pe segmentul superior, de lux. Noi încercăm cu toate proiectele să propunem un alt aer în arhitectura contemporană”, adaugă Irina Schrotter care explică: „E greu, dacă vrei să îți găsești în Iași un apartament care să aibă două băi măcar, nu mai zic de trei băi, că apartamente cu trei băi nu găsești nicăieri în Iași. Noi ne ducem un pic către un alt standard, din punctul ăsta de vedere. Încercăm să dăm ocazia celor care au nevoie de standardul ăsta să aibă o opțiune. Nu suntem singurii, mai sunt proiecte în Iași care încep să tatoneze această piață. Eu cred că e nevoie.”
Pe lângă aceste inițiative, familia Schrotter deține un teren de 12 hectare între Podu Roș și Metalurgie, unde se planifică o dezvoltare de amploare. „E posibil să gândim o dezvoltare pe înălțime, pentru că acolo permite terenul.”
Prima firmă a fost înființată în 1991
Implicarea Irinei Schrotter în business nu este recentă. Prima firmă a familiei, Exclusiv SRL, a fost înființată în 1991, având ca obiect de activitate servicii de coafură și înfrumusețare. În 2023, firma a avut o cifră de afaceri de 1,36 milioane lei. În 1994, a urmat Exclusiv Comp SRL, dedicată designului specializat, care a raportat în 2023 o cifră de afaceri de 6,1 milioane lei și 41 de angajați. În sectorul imobiliar, familia operează prin companii precum I.S. Company SRL și Imobiliare Moldova SRL, ultima având o cifră de afaceri de 2,5 milioane lei anul trecut. Irina Schrotter subliniază că acest context este unul oportun atât pentru dezvoltatori, cât și pentru cumpărători. „Cine achiziționează acum un apartament, în 10-20 de ani va avea un profit foarte bun. Eu cred că este un moment bun și pentru dezvoltatori, dar și pentru cei care vor să investească”.
Publicitate și alte recomandări video